ΣΥΝΟΔΕΥΤΙΚΟ
ΕΓΓΡΑΦΟ Β΄
ΜΕ ΒΟΗΘΗΤΙΚΕΣ ΠΛΗΡΟΦΟΡΙΕΣ ΓΙΑ ΑΠΑΝΤΗΣΕΙΣ
Τα σχέδια/φωτογραφίες που περιέχονται
σ’ αυτό τον συνοδευτικό οδηγό, δίνουν τις απαραίτητες πληροφορίες, με σκοπό την
καλύτερη κατανόηση των θεμάτων που αφορούν στην συμπλήρωση του κυρίως
ερωτηματολογίου. Οι πληροφορίες δίνονται ξεχωριστά για κάθε θεματική ενότητα,
αντιπαραβάλλοντας τις ερωτήσεις με τα ανάλογα σχέδια. Παράλληλα, μπορεί να
χρησιμοποιηθεί για πρόχειρη καταγραφή των δεδομένων, ώστε στη συνέχεια να
περαστούν στο κυρίως ερωτηματολόγιο, το οποίο θα αποστείλετε ηλεκτρονικά στο
Τμήμα Κοινωνικής Ενσωμάτωσης:
Γ. ΧΩΡΟΙ ΣΤΑΘΜΕΥΣΗΣ ΑμεΑ
15.
|
Συνολικός Αριθμός θέσεων για την Υπηρεσία σας
|
||||
15.1
|
Έχετε ειδικούς χώρους στάθμευσης για ΑμεΑ;
|
ΝΑΙ
|
ΟΧΙ
|
||
15.2
|
Οι χώροι στάθμευσης για ΑμεΑ βρίσκονται κοντά στην
προσβάσιμη είσοδο του κτηρίου;
|
ΝΑΙ
|
ΟΧΙ
|
||
15.3
|
Βρίσκονται στο ισόγειο;
|
ΝΑΙ
|
ΟΧΙ
|
||
15.4
|
Βρίσκονται στο Υπόγειο;
|
ΝΑΙ
|
ΟΧΙ
|
||
15.5
|
Βρίσκονται σε απόσταση μικρότερη των 30 μέτρων από την
προσβάσιμη είσοδο ;
|
ΝΑΙ
|
ΟΧΙ
|
||
15.6
|
Βρίσκονται σε απόσταση μεγαλύτερη των 30 μέτρων;
|
ΝΑΙ
|
ΟΧΙ
|
||
15.7
|
Έχουν σήμανση για ΑμεΑ;
|
15.7.1
|
Στο δάπεδο
|
ΝΑΙ
|
ΟΧΙ
|
15.7.2
|
Σε στύλο ή στον τοίχο;
|
ΝΑΙ
|
ΟΧΙ
|
||
15.8
|
Ποιος είναι ο λόγος που δεν έχετε ειδικούς χώρους στάθμευσης;
|
15.8.1
|
Πολεοδομικός/ Τεχνικός
|
||
15.8.2
|
Άλλος (γράψτε τον)
|
||||
Χώροι στάθμευσης κοντά στην είσοδο/ανελκηστήρα
Διαστάσεις χώρων στάθμευσης ΑμεΑ με επιδαπέδια σήμανση

Κατευθυντήρια σήμανση προς τον χώρο στάθμευσης ΑμεΑ
Δ. ΔΙΑΔΡΟΜΗ ΠΡΟΣΕΓΓΙΣΗΣ ΠΕΖΩΝ
|
16.
|
Υπάρχει πεζοδρόμιο με
διάβαση πεζών πλησίον του κτηρίου;
|
ΝΑΙ
|
ΟΧΙ
|
|
16.1
|
Αν ναι,
υπάρχει ράμπα επί του πεζοδρομίου στο σημείο της διάβασης;
|
ΝΑΙ
|
ΟΧΙ
|
|
16.2
|
Υπάρχει
«οδηγός όδευσης τυφλών» στη διαδρομή από το σημείο της διάβασης μέχρι το
κτίριο σας;
|
ΝΑΙ
|
ΟΧΙ
|
|
16.3
|
Υπάρχει
ράμπα σύνδεσης του πεζοδρομίου με την είσοδο
του κτηρίου;
|
ΝΑΙ
|
ΟΧΙ
|
Διάβαση πεζών με ραμπες πεζοδρομίου
Οδηγός όδευσης τυφλών
Ε. ΕΙΣΟΔΟΣ
|
17
|
Η κύρια είσοδος έχει σκαλοπάτια,
|
ΝΑΙ
|
ΟΧΙ
|
|
17.1
|
αν ναι, πόσα σκαλοπάτια έχει;
|
|
|
|
17.2
|
Υπάρχει ράμπα προς το επίπεδο
της εισόδου;
|
ΝΑΙ
|
ΟΧΙ
|
|
17.3
|
Ποιο το μήκος της ράμπας;
|
|
|
|
17.4
|
Αν η κύρια είσοδος δεν είναι προσβάσιμη, υπάρχει άλλη
προσβάσιμη είσοδος στο κτίριο;
|
ΝΑΙ
|
ΟΧΙ
|
|
17.5
|
Αν ναι, ποιο το μήκος της ράμπας
προς την είσοδο αυτή;
|
|
|
|
17.6
|
Υπάρχει πινακίδα που να ενημερώνει για την δυνατότητα
πρόσβασης από την άλλη είσοδο;
|
ΝΑΙ
|
ΟΧΙ
|
|
17.7
|
Ποιο το πλάτος της θύρας;
|
|
|
|
17.8
|
Η θύρα έχει μηχανισμό αυτόματης
επαναφοράς;
|
ΝΑΙ
|
ΟΧΙ
|
|
17.9
|
Θεωρείτε ότι ο πιο πάνω μηχανισμός είναι εύκολος στην χρήση και δεν απαιτεί
σημαντική δύναμη;
|
ΝΑΙ
|
ΟΧΙ
|
κατευθηντήρια σήμανση για είσοδο
ΣΤ. ΚΑΤΑΚΟΡΥΦΗ ΚΥΚΛΟΦΟΡΙΑ
|
18.
|
Υπάρχει προσβάσιμος
ανελκυστήρας με πλάτος εισόδου 80 εκ;
|
ΝΑΙ
|
ΟΧΙ
|
|
18.1
|
Η θύρα εισόδου βρίσκεται
στην μικρή πλευρά του θαλάμου;
|
ΝΑΙ
|
ΟΧΙ
|
|
18.2
|
Ποιες οι εσωτερικές
διαστάσεις του θαλάμου; (σε εκατοστά)
|
|
|
|
18.3
|
Υπάρχει σε κάθε όροφο, στον
προθάλαμο του ανελκυστήρα ακουστική αναγγελία άφιξης;
|
ΝΑΙ
|
ΟΧΙ
|
|
18.4
|
Υπάρχει σε κάθε όροφο
λεκτική αναγγελία της κατεύθυνσης του ανελκυστήρα;
|
ΝΑΙ
|
ΟΧΙ
|
|
18.5
|
Υπάρχει μέσα στον θάλαμο
λεκτική αναγγελία ορόφων;
|
ΝΑΙ
|
ΟΧΙ
|
|
18.6
|
Υπάρχουν κομβία στη γραφή BRAILLE για τυφλούς;
|
ΝΑΙ
|
ΟΧΙ
|
εσωτερικές διαστάσεις του θαλάμου: 1,10Χ1,40 και θύρα στη μικρή πλευρά του θαλάμου
κομβία στη γραφή BRAILLE
Ζ. ΕΞΥΠΗΡΕΤΗΣΕΙΣ
|
19
|
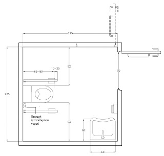
Υπάρχει προσβάσιμη τουαλέτα
για ΑμεΑ; (βλέπε επισυναπτόμενο φυλλάδιο)
|
ΝΑΙ
|
ΟΧΙ
|
|
19α
|
Πότε
προγραμματίζεται η διαρρύθμιση χώρου υγιάνεις ΑμεΑ στο κτήριο;
|
|
|
|
19β
|
Αν δεν υπάρχει χώρος υγιεινής
ΑμεΑ, προχωρήστε στο σημείο 20
|
||
|
19.1
|
Υπάρχει καθοδηγητική σήμανση
στον χώρο της εισόδου του κτηρίου προς την προσβάσιμη τουαλέτα;
|
ΝΑΙ
|
ΟΧΙ
|
|
19.2
|
Η πόρτα ανοίγει εξωτερικά;
|
ΝΑΙ
|
ΟΧΙ
|
|
19.3
|
Υπάρχει ειδική σήμανση με το
σύμβολο ΑμεΑ στην πόρτα;
|
ΝΑΙ
|
ΟΧΙ
|
|
19.4
|
Ποιο είναι το καθαρό πλάτος
της πόρτας;
|
|
|
|
19.5
|
Ποιες είναι οι εσωτερικές
διαστάσεις του χώρου της τουαλέτας; σε εκατοστά
|
|
|
|
19.6
|
Πόσα
εκατοστά απέχει η λεκάνη από τον πλαϊνό τοίχο;
|
|
|
|
19.7
|
Υπάρχει χειρολαβή στον
πλαϊνό τοίχο;
|
ΝΑΙ
|
ΟΧΙ
|
|
19.8
|
Υπάρχει
αναδιπλούμενη χειρολαβή στην ελεύθερη πλευρά της λεκάνης;
|
ΝΑΙ
|
ΟΧΙ
|
|
19.9
|
Υπάρχει
κενό κάτω από το νιπτήρα για την προσέγγιση αμαξιδίου ΑμεΑ;
|
ΝΑΙ
|
ΟΧΙ
|
Η. ΑΝ Η ΥΠΗΡΕΣΙΑ ΠΡΟΫΠΟΘΕΤΕΙ ΠΑΓΚΟ ΕΞΥΠΗΡΕΤΗΣΗΣ
ΚΟΙΝΟΥ
|
20.
|
Η Υπηρεσία σας έχει πάγκο
εξυπηρέτησης κοινού;
|
ΝΑΙ
|
ΟΧΙ
|
|
20.1
|
Υπάρχει προσβάσιμο σημείο εξυπηρέτησης πολιτών με
αναπηρία;
|
ΝΑΙ
|
ΟΧΙ
|
|
20.2
|
Υπάρχει πρόνοια για πάγκο μήκους ενός μέτρου και
ύψους 80 εκ. με κενό στο κάτω μέρος για την προσέγγιση αμαξιδίου ΑμεΑ;
|
ΝΑΙ
|
ΟΧΙ
|
|
20.3
|
Υπάρχει οδηγός όδευσης τυφλών επικολλημένος στο
δάπεδο, από το σημείο της εισόδου
μέχρι το σημείο εξυπηρέτησης ΑμεΑ;
|
ΝΑΙ
|
ΟΧΙ
|
ΣΥΜΠΛΗΡΩΣΕΙΣ/ ΠΑΡΑΤΗΡΗΣΕΙΣ:













Δεν υπάρχουν σχόλια:
Δημοσίευση σχολίου